Atelier industriel – Caussade
5 février 2026

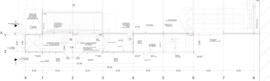
Conception et construction d’un atelier de peinture

Localisation :  Caussade
Maître d’ouvrage :
  privé
Année :
  2016

Partager cet article :

Nos derniers projets

Un bâtiment en pierre encadré par des arbres, dans une rue bordée d'arbres.
5 février 2026
Rénovation de la mairie de Saint-Vincent-d’Autejac
Bâtiment jaune de trois étages avec volets bleus, cour et petit arbre.
5 février 2026
Réhabilitation d’un îlot urbain à Caussade
Bâtiment en pierre avec des fenêtres cintrées en verre au rez-de-chaussée et des fenêtres rectangulaires aux étages supérieurs.
5 février 2026
Réhabilitation d’un bâtiment
En voir plus